Trilocale in vendita

Bologna, Via Milazzo
€ 280.000
Prezzo aggiornato
3 locali 3 locali
60 Mq 60 Mq
1 bagno 1 bagno

Trilocale in vendita

Bologna, Via Milazzo

Descrizione annuncio

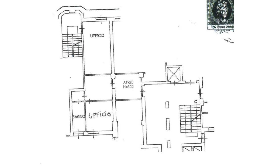
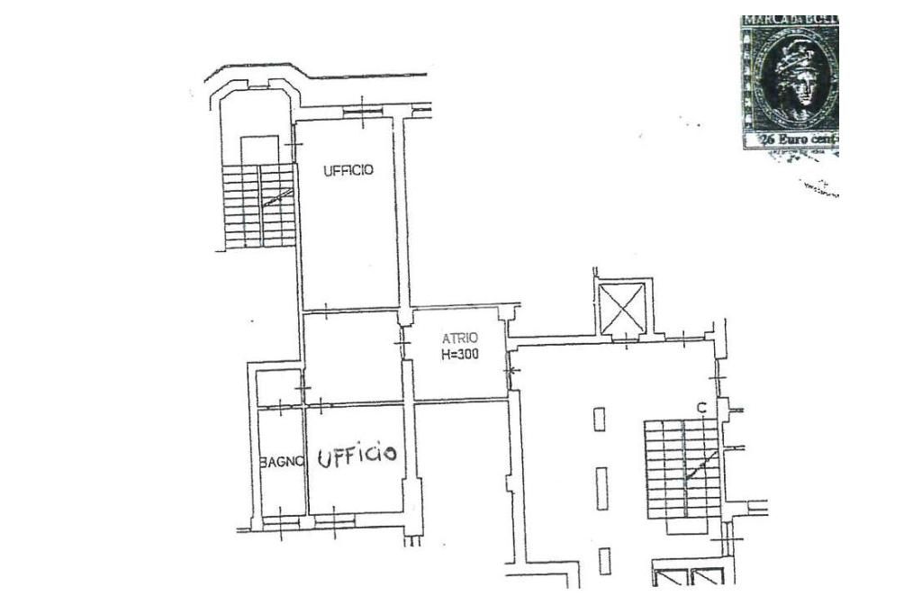
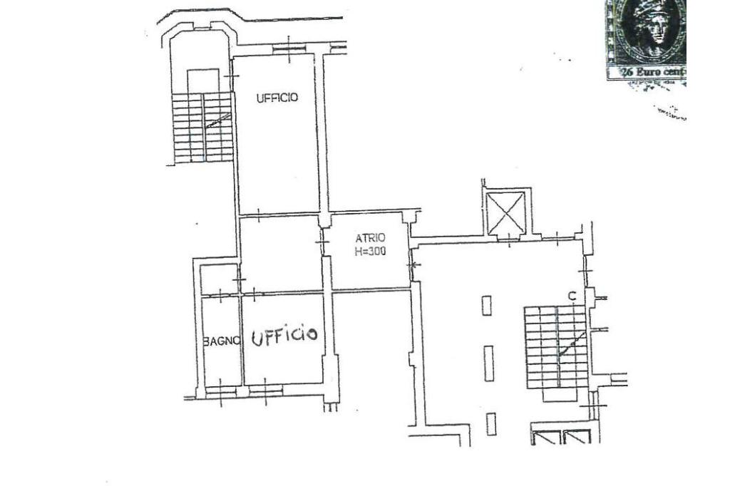
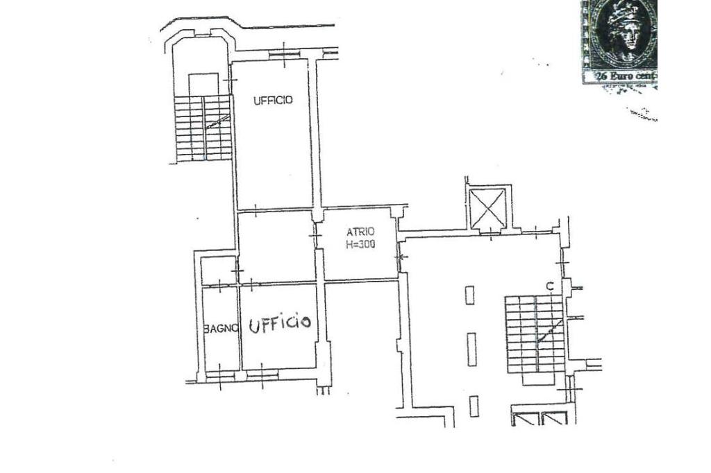
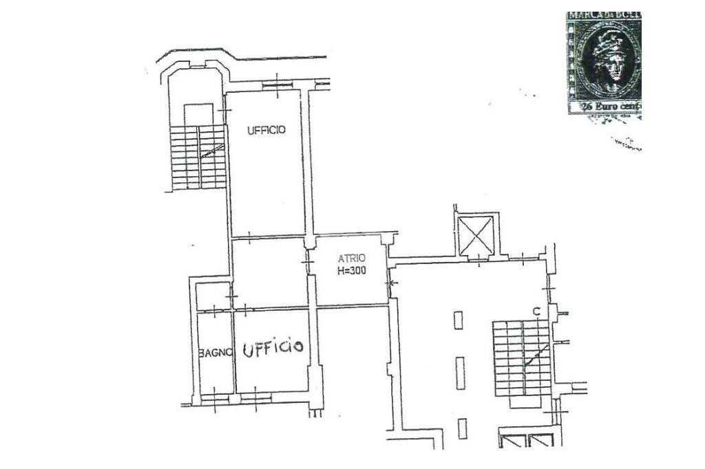
Via Milazzo - proponiamo un appartamento signorile di 60 mq, situato al piano terra di un elegante edificio con servizio di portineria. L'immobile, costruito nel 1960, offre un contesto tranquillo e silenzioso, ideale per chi cerca comfort e riservatezza. Composto da due locali ben distribuiti, l'appartamento è dotato di aria condizionata e impianto cablato, garantendo un ambiente moderno e funzionale. L'assenza di barriere architettoniche e la presenza di un ascensore rendono l'accesso comodo e agevole per tutti. La posizione strategica, a breve distanza dalla stazione, consente di muoversi facilmente sia in città che verso altre destinazioni. Un'opportunità unica per chi desidera vivere in un contesto esclusivo, senza rinunciare alla comodità dei servizi cittadini. Le immagini proposte sono un layout o un idea di come potrebbe venire l'interno rispettando gli spazi della struttura originale.

Attualmente è un ufficio con possibilità di cambio destinazione d'uso in abitazione e verrebbe venduto già ristrutturato.

Mostra tutto

Nelle vicinanze

Trasporto pubblico Trasporto pubblico
stazione di Bologna Centrale
stazione di Bologna Centrale
320 m
Bologna AV
Bologna AV
400 m
Milazzo
Milazzo
50 m
Amendola
Amendola
90 m
stazione di Bologna San Vitale
stazione di Bologna San Vitale
2,7 Km
Ricariche auto elettriche Ricariche auto elettriche
Bologna Piazza dei Martiri | EnelX
150 m
Eneldrive Bologna Centrale FS
160 m
Bologna Righi | EnelX
600 m
Eneldrive Comune di Bologna - Palazzo Bonaccorso
620 m
Be Charge
730 m
Scuole Scuole
Scuole
140 m
Dipartimento di Filosofia e Comunicazione
420 m
Università di Bologna - DAMSLab - Dipartimento delle Arti
510 m
Scuola Elementare Federzoni
550 m
Liceo Scientifico A. B. Sabin
560 m
Farmacia Farmacia
Farmacia della Stazione Centrale
220 m
Mille
270 m
San Benedetto
430 m
Farmacia del Mercato
550 m
Carracci
560 m
Ospedali Ospedali
Ospedali
160 m
CUP Metropolitano
190 m
Ospedale Militare
810 m
Roncati
1,5 Km
Villa Torri
1,6 Km
Supermercati Supermercati
Coop
210 m
Aldi
290 m
Eurospar
320 m
Kalinka
350 m
Mercato Ritrovato
540 m
Negozi Negozi
Sonar Bangla
40 m
Pionti Orto
60 m
Arcobaleno
130 m
Chen Shi
160 m
Motivi
220 m
Bar Bar
Parigi
50 m
Bellini
70 m
Beat Eat 24
90 m
River
110 m
L'Una
120 m
Ristoranti Ristoranti
I Re di Napoli
90 m
Il Veliero
100 m
La Rotonda
130 m
Ein Prosit
190 m
Ristorante Bolognese
210 m
Mostra tutto

Caratteristiche

Rif.:
61128454
Piano:
Terra di 7 con ascensore
Totale piani:
7
Camere da letto:
1
Arredamento:
Assente
Condizionamento:
Autonomo
Mostra tutto
Prezzo Prezzo
€ 280.000
Rata mutuo Rata mutuo
€ 1.320 / mese
Spese annue Spese annue
€ 1.700
Proponi il tuo prezzoProponi il tuo prezzo

Classe Energetica

G
G
G
G
G
G
G
G
G
EP globale non rinnovabile:
112.00 kW h/m² anno
EP globale rinnovabile:
112.00 kW h/m² anno
Anno di costruzione:
1960
Riscaldamento:
Centralizzato
Tipo impianto:
A radiatori
Tipo alimentazione:
Metano

Prezzo ridotto di €1 (4%%)

Ti interessa visionare l'immobile?

Fissa un appuntamento  Fissa un appuntamento

Richiedi informazioni

Clicca su Leggi per aprire l'informativa
* Questi campi sono obbligatori

Calcola il tuo mutuo

Semplice e senza impegno
Anticipo

( % )
Mutuo

( % )

pochi semplici passi

inserisci i tuoi dati
Questionario completato
Grazie per aver richiesto un appuntamento senza impegno con un nostro Consulente del Credito e Assicurativo.

Hai inserito correttamente tutti i dati necessari e a breve riceverai una e-mail con un link da convalidare per inviare i tuoi dati.
Affiliato
La Commerciale Srl
Via Marconi, 49/A 40122 Bologna (BO)

Il nostro staff


  • Daniele Pondrelli
    Affiliato

  • Simona Benfenati
    Coordinatrice

  • Ignazio Mannone
    Collaboratore
Via Marconi, 49/A 40122 Bologna (BO)
Zona: Centro Storico Q.re Porto: Lame - Marconi
Mostra su mappa
Orari: dal lunedì al venerdì 09.00-13.00 / 15.00-20:00; sabato 09.00-13.00
Affiliato
La Commerciale Srl
Via Marconi, 49/A 40122 Bologna (BO)

2025 Tecnocasa Franchising S.p.A. - P. IVA 08365160152 - Via Monte Bianco 60/A 20089 Rozzano (MI). Ogni agenzia ha un proprio titolare ed è autonoma. Privacy policy | Policy utilizzo | Cookie policy