Capannone in vendita

Bologna, via Giuseppe Minganti - Larga
€ 3.100.000
3200 Mq 3200 Mq
5 bagni 5 bagni

Capannone in vendita

Bologna, via Giuseppe Minganti - Larga

Descrizione annuncio

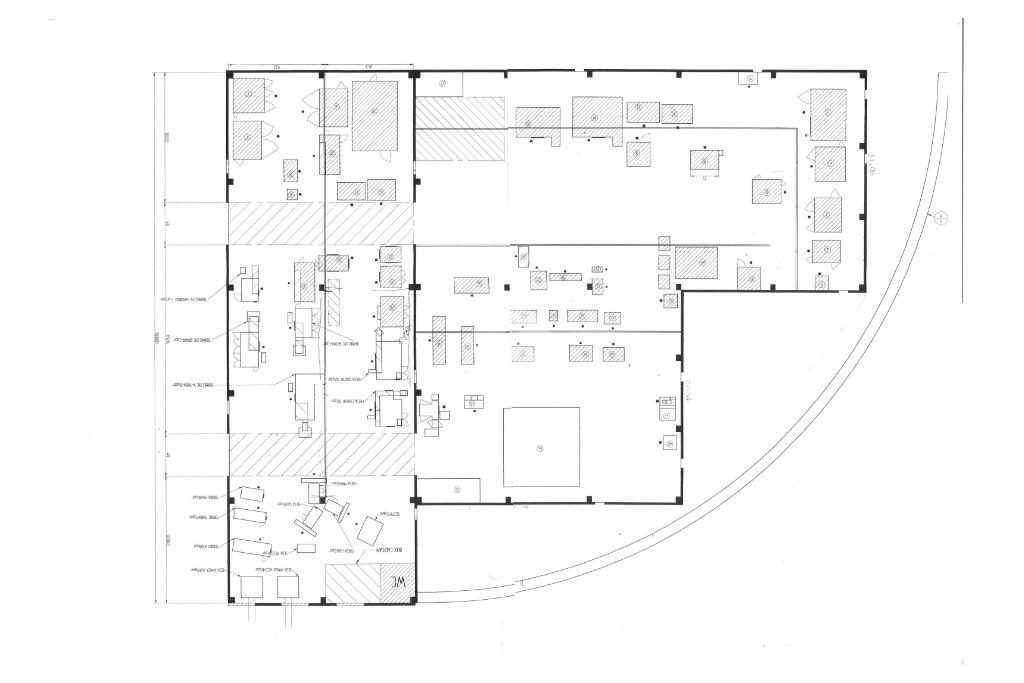
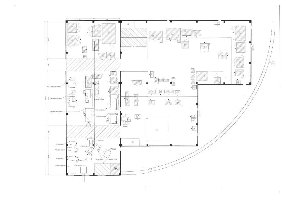
Via Dell’Industria (Roveri) – Capannone di ca 2200 mq con altezza di 8 mt con palazzina uffici di circa 500 mq su due livelli per comode attività amministrative, archivio e magazzino all’interrato per 300 mq ca e appartamento di ca 130 mq al piano primo per attività multiple. Ampia area esterna di ca 1200 mq parte ancora a verde e piazzale, offre una comoda area di carico e scarico merci, ideale per attività di logistica o carpenteria. Possibilità di ampliamento di superficie dell'immobile. Il capannone è dotato di impianti certificati e dispone di vari servizi igienici, per garantire funzionalità e comfort. L'ampio spazio esterno comprende un giardino e dieci posti auto, facilitando l'accesso e il parcheggio. L'immobile è dotato di aria condizionata, assicurando un ambiente di lavoro confortevole. La posizione strategica garantisce alta visibilità da via Dell'Industria, rendendolo un'opportunità interessante per chi cerca una soluzione versatile, visibile e ben collegata.

Mostra tutto

Nelle vicinanze

Trasporto pubblico Trasporto pubblico
Bologna Roveri
Bologna Roveri
1,4 Km
Vetraio
Vetraio
240 m
Rotonda Negroni
Rotonda Negroni
570 m
Ca' dell'Orbo
Ca' dell'Orbo
1,0 Km
Bologna Via Larga
Bologna Via Larga
2,6 Km
Ricariche auto elettriche Ricariche auto elettriche
Villanova Tosarelli | EnelX
900 m
FICO Eataly World Parcheggio Est | EnelX
1,3 Km
Bologna Fonditore Taxi | EnelX
1,5 Km
Living Place - Gruppo Jsh
1,6 Km
FICO Eataly World Parcheggio Ovest | EnelX
1,8 Km
Scuole Scuole
Scuola elementare Angela Fresu
1,0 Km
Scuola di Agraria
1,5 Km
Scuole
2,6 Km
Farmacia Farmacia
Villanova
1,2 Km
Meraville
2,0 Km
Farmacia Lloyds del Pilastro
2,2 Km
Quarto Inferiore
2,7 Km
Mia
2,7 Km
Ospedali Ospedali
Infermeria
2,6 Km
Ospedali
2,8 Km
Supermercati Supermercati
Extracoop
1,8 Km
COOP
1,8 Km
Lidl
2,2 Km
Interspar
2,3 Km
Conad Castenaso
2,7 Km
Negozi Negozi
King Sport & Style
1,6 Km
OVS
1,6 Km
Bershka
1,6 Km
Maurizio
1,6 Km
Camiceria Affinito
1,7 Km
Bar Bar
Giostrà
1,7 Km
Fruit Bar
1,7 Km
Gustavo
1,7 Km
Titto Gelateria
1,7 Km
La Torteria
1,8 Km
Ristoranti Ristoranti
Il Chiosco
1,2 Km
Sushiko
1,7 Km
Gustavo Italiano
1,7 Km
Sano e Delizioso
1,7 Km
Buona Pausa
1,7 Km
Mostra tutto

Caratteristiche

Rif.:
61194798
Piano:
Terra di 1
Totale piani:
1
Posti auto:
10
Condizionamento:
Autonomo
Ascensore:
No
Mostra tutto
Prezzo Prezzo
€ 3.100.000
Rata mutuo Rata mutuo
€ 14.613 / mese
Spese annue Spese annue
€ 0
Proponi il tuo prezzoProponi il tuo prezzo

Classe Energetica

F
F
F
F
F
F
F
F
F
EP globale non rinnovabile:
112.00 kW h/m² anno
EP globale rinnovabile:
112.00 kW h/m² anno
Anno di costruzione:
1975
Riscaldamento:
Autonomo
Tipo impianto:
Ad aria
Tipo alimentazione:
Metano

Ti interessa visionare l'immobile?

Fissa un appuntamento  Fissa un appuntamento

Richiedi informazioni

Clicca su Leggi per aprire l'informativa
* Questi campi sono obbligatori

Calcola il tuo mutuo

Semplice e senza impegno
Anticipo

( % )
Mutuo

( % )

pochi semplici passi

inserisci i tuoi dati
Questionario completato
Grazie per aver richiesto un appuntamento senza impegno con un nostro Consulente del Credito e Assicurativo.

Hai inserito correttamente tutti i dati necessari e a breve riceverai una e-mail con un link da convalidare per inviare i tuoi dati.
Affiliato
La Commerciale Srl
Via Marconi, 49/A 40122 Bologna (BO)

Il nostro staff


  • Daniele Pondrelli
    Affiliato

  • Simona Benfenati
    Coordinatrice
Via Marconi, 49/A 40122 Bologna (BO)
Zona: Centro Storico Q.re Porto: Lame - Marconi
Mostra su mappa
Orari: dal lunedì al venerdì 09.00-13.00 / 15.00-20:00; sabato 09.00-13.00
Affiliato
La Commerciale Srl
Via Marconi, 49/A 40122 Bologna (BO)

2026 Tecnocasa Franchising S.p.A. - P. IVA 08365160152 - Via Monte Bianco 60/A 20089 Rozzano (MI). Ogni agenzia ha un proprio titolare ed è autonoma. Privacy policy | Policy utilizzo | Cookie policy