Ufficio in vendita

Bologna, Via Milazzo
€ 220.000
Prezzo aggiornato
3 locali 3 locali
60 Mq 60 Mq
1 bagno 1 bagno

Ufficio in vendita

Bologna, Via Milazzo

Descrizione annuncio

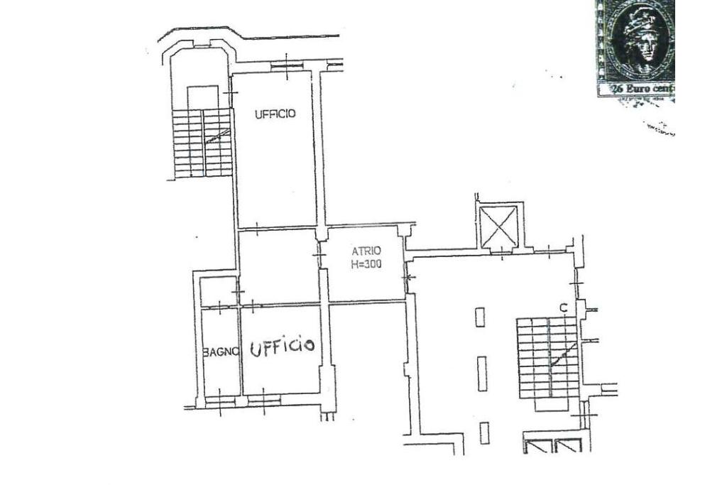
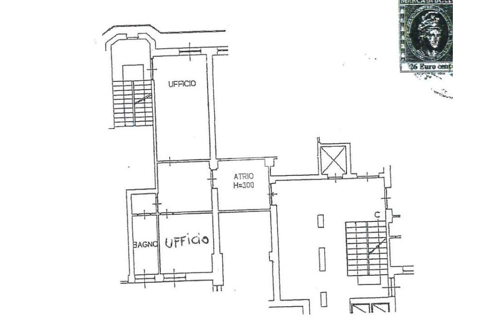
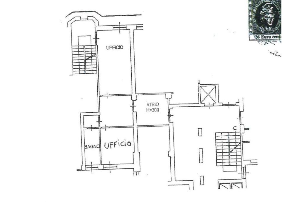
Via Milazzo (adiacenze stazione) Proponiamo un ufficio in vendita di 60 mq situato al piano terra di un elegante contesto signorile. L'immobile, costruito negli anni '60, offre un ambiente professionale composto da tre locali ben distribuiti e un bagno. La presenza di un servizio di portineria garantisce sicurezza e accoglienza, mentre l'assenza di barriere architettoniche assicura un accesso agevole a tutti. L'ufficio è completamente climatizzato, ideale per mantenere un ambiente di lavoro confortevole in ogni stagione. La struttura è cablata, pronta per soddisfare le esigenze tecnologiche moderne. Situato in una posizione strategica, l'ufficio è a breve distanza dalla stazione, facilitando gli spostamenti e rendendolo una scelta ideale per professionisti e aziende che necessitano di un punto di riferimento centrale e facilmente raggiungibile. La tranquillità della zona garantisce un ambiente di lavoro silenzioso e produttivo. Ideale anche per studio medico.

Mostra tutto

Nelle vicinanze

Trasporto pubblico Trasporto pubblico
stazione di Bologna Centrale
stazione di Bologna Centrale
330 m
Bologna AV
Bologna AV
450 m
Autostazione
Autostazione
80 m
Indipendenza Mille
Indipendenza Mille
120 m
stazione di Bologna San Vitale
stazione di Bologna San Vitale
2,4 Km
Ricariche auto elettriche Ricariche auto elettriche
Eneldrive Bologna Centrale FS
130 m
Bologna Piazza dei Martiri | EnelX
330 m
Bologna Righi | EnelX
470 m
Bologna Mascarella | EnelX
730 m
Eneldrive Comune di Bologna - Palazzo Bonaccorso
730 m
Scuole Scuole
Scuole
30 m
Scuola Media Irnerio
430 m
Liceo Scientifico A. B. Sabin
470 m
Scuola Elementare Federzoni
540 m
Dipartimento di Filosofia e Comunicazione
570 m
Farmacia Farmacia
Mille
180 m
Farmacia della Stazione Centrale
290 m
San Benedetto
320 m
Farmacia del Mercato
440 m
Sacro Cuore
610 m
Ospedali Ospedali
Ospedali
120 m
CUP Metropolitano
180 m
Ospedale Militare
930 m
Villa Torri
1,3 Km
Poliambulatorio Zanolini
1,4 Km
Supermercati Supermercati
Kalinka
270 m
Eurospar
290 m
Aldi
300 m
Coop
310 m
Conad City via Finelli
490 m
Negozi Negozi
MIX Markt
60 m
A.Testoni
70 m
Du Pareil au Même
70 m
Biba's
70 m
Della Nonna
70 m
Bar Bar
Golden
60 m
Lord Bar
80 m
Fil
90 m
International
170 m
Rinascita
200 m
Ristoranti Ristoranti
Bottega Portici - Indipedenza
110 m
Ristorante Bolognese
130 m
Bottega I Portici
140 m
E'Cucina
160 m
Trattoria Bolognese
180 m
Mostra tutto

Caratteristiche

Rif.:
61124460
Piano:
Terra di 7 con ascensore
Totale piani:
7
Condizionamento:
Autonomo
Ascensore:
Riscaldamento:
Centralizzato
Mostra tutto
Prezzo Prezzo
€ 220.000
Rata mutuo Rata mutuo
€ 1.037 / mese
Spese annue Spese annue
€ 1.700
Proponi il tuo prezzoProponi il tuo prezzo

Classe Energetica

G
G
G
G
G
G
G
G
G
EP globale non rinnovabile:
112.00 kW h/m² anno
Anno di costruzione:
1960
Riscaldamento:
Centralizzato
Tipo impianto:
A radiatori
Tipo alimentazione:
Metano

Prezzo ridotto di €1 (5%%)

Ti interessa visionare l'immobile?

Fissa un appuntamento  Fissa un appuntamento

Richiedi informazioni

Clicca su Leggi per aprire l'informativa
* Questi campi sono obbligatori

Calcola il tuo mutuo

Semplice e senza impegno
Anticipo

( % )
Mutuo

( % )

pochi semplici passi

inserisci i tuoi dati
Questionario completato
Grazie per aver richiesto un appuntamento senza impegno con un nostro Consulente del Credito e Assicurativo.

Hai inserito correttamente tutti i dati necessari e a breve riceverai una e-mail con un link da convalidare per inviare i tuoi dati.
Affiliato
La Commerciale Srl
Via Marconi, 49/A 40122 Bologna (BO)

Il nostro staff


  • Daniele Pondrelli
    Affiliato

  • Simona Benfenati
    Coordinatrice

  • Ignazio Mannone
    Collaboratore
Via Marconi, 49/A 40122 Bologna (BO)
Zona: Centro Storico Q.re Porto: Lame - Marconi
Mostra su mappa
Orari: dal lunedì al venerdì 09.00-13.00 / 15.00-20:00; sabato 09.00-13.00
Affiliato
La Commerciale Srl
Via Marconi, 49/A 40122 Bologna (BO)

2025 Tecnocasa Franchising S.p.A. - P. IVA 08365160152 - Via Monte Bianco 60/A 20089 Rozzano (MI). Ogni agenzia ha un proprio titolare ed è autonoma. Privacy policy | Policy utilizzo | Cookie policy